/// SOUS OPTION ///
Hoogstraat 5 - 1930 Zaventem
- Année de construction:2010
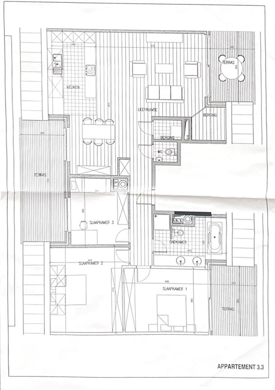
/// SOUS OPTION /// INFO & BEZOEKEN met Nicola op 0475/21.73.18 of met Borina op 0499/29.86.86, of per e-mail: borina.p@connexionimmo.be. Connexion Immo Centre stelt u dit penthouse van 138 m² bewoonbare oppervlakte met 3 terrassen te koop voor, gelegen op de bovenste verdieping van een recent gebouw en rechtstreeks bereikbaar met de lift. De verdieping is volledig privatief, wat zorgt voor totale rust. Het appartement opent met een inkomhal die leidt naar een ruime en lichtrijke leefruimte van 62 m² met salon, eetkamer en volledig ingerichte open keuken. De eetkamer geeft toegang tot een terras van 17 m² op het zuidwesten, de woonkamer tot een tweede terras van 9 m², en een derde privaat terras van 9 m² grenst aan de slaapkamer van 17,5 m². Het nachtgedeelte omvat verder een slaapkamer/bureau van 14 m² met toegang tot het grote terras, een master bedroom van 21 m² en een badkamer van 12 m² met ligbad, douche en dubbele wastafel. Een wasruimte en een apart toilet vervolledigen het geheel. Het comfort wordt verzekerd door een centrale verwarming op aardgas, geïntegreerde airconditioning en muggenramen in elke kamer. Twee private ondergrondse parkeerplaatsen en een kelder zijn inbegrepen. De ligging is ideaal: slechts 2 km van de luchthaven van Zaventem en in de onmiddellijke nabijheid van alle voorzieningen. Doe een bod vanaf 489.000 €. EPC nr. 20250717-0003649562 – Klasse B – E spec: 167 kWh/m².jaar. (De gepubliceerde informatie is indicatief en niet contractueel; de eigenaars behouden zich het recht voor het bod van hun keuze te aanvaarden).
Certificat énergétique
- PEB No.202507170003649562
- E spec :167 kWh/m².an
- E totale :0
- Emission CO2 :0

167
Confort / Equipements
Description
- Superficie habitable138 m²
- Terrasse17.16 m²
- Place de parking2
Construction & Façade arrière
- Nbre de façades2
- Type de constructionTraditionnel
- Orientation façade arrière
État du bien
- État du bienExcellent état
Cuisine
- Equipement cuisineEntièrement équipée
Chauffage
- ChauffageIndividuel
- Détecteur de fumée/
- Type de chauffageC.C. au gaz
Vitrage
- VitrageDouble
- Cadre de fenêtrepvc
Toit
- Type de toitToit plat
- Couverture de toit
Confort intérieur
Air conditionné
Caractéristiques spéciales
- Cave :Oui
- Grenier :Non
Composition
- Living62 m²
- Terrasse17.16 m²


