Un pied en ville, la tête au vert !
Rue Royale 101 - 6141 FORCHIES-LA-MARCHE
- Année de construction:2025
INFOS & VISITES avec Jannique Hardenne au 0472/63.11.64 (ou sur jannique.h@connexionimmo.be).
C’est aux portes des grands axes routiers tels que A54/N27 mais aussi R3/A15-E42 et d’un grand pôle comme Charleroi, qui fait que Forchies-la-Marche offre une qualité de vie paisible, dans un environnement calme et verdoyant tout en étant proche de la vie active et trépidante d’une grande ville.
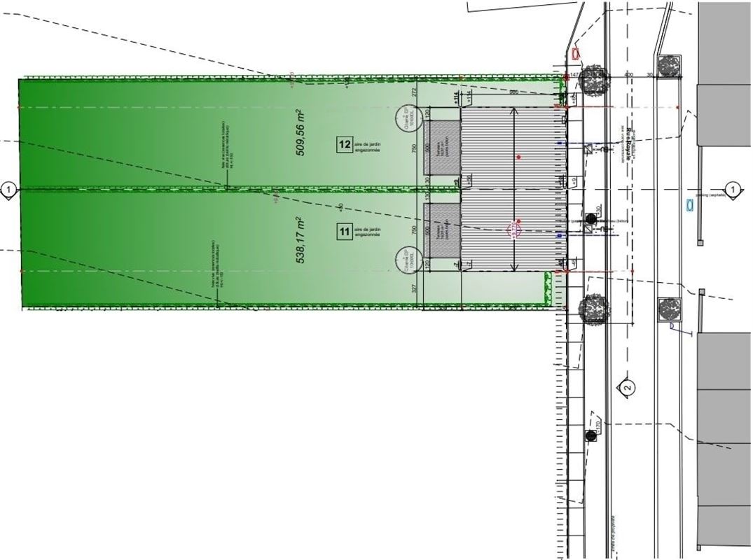
Cette jolie villa 3 façades. neuve implantée sur 1 parcelle de 5 ares orientée sud, offre une magnifique vue sur les campagnes et se situe à quelques pas du Ravel.
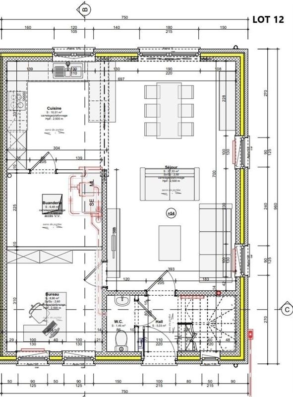
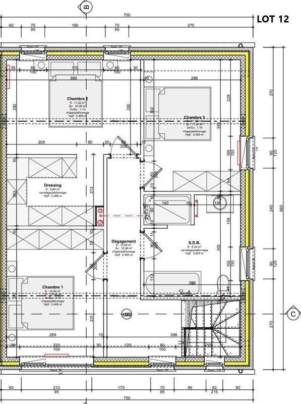
Elle se compose au RDC : bureau, séjour, cuisine équipée, buanderie. A l’étage, 3 belles chambres dont 1 avec dressing et grande SDB. Grenier de rangement 30 m².
Outre son architecture sobre et ses beaux volumes idéalement agencés (144 m²), cette villa répond au confort et aux attentes économiques souhaitées : 6 panneaux photovoltaïques, chaudière gaz haut rendement, double vitrage PVC, PEB A.
Bus, écoles, crèche et commerces à 2 pas.
Cette villa fait partie d’un nouveau lotissement (d’autres maisons sont disponibles à partir de 285.000 euros hors frais).
N’hésitez pas à nous contacter pour avoir les renseignements complets sur celles-ci et fixer un rendez-vous pour les visiter.
Faire offre à partir de 325.000€ (hors frais).
(Les informations publiées sur ce site ont un caractère indicatif et non contractuel; les propriétaires se réservent le droit de l'acceptation de l'offre de leur choix).
Confort / Equipements
Description
- Superficie habitable114 m²
- Terrasse15 m²
- Place de parking0
Construction & Façade arrière
- Nbre de façades3
- Type de constructionTraditionnel
- Orientation façade arrièreSud
État du bien
- État du bienNouvelle construction
Cuisine
- Equipement cuisineArmoires et appareils
Chauffage
- ChauffageIndividuel
- Détecteur de fumée/
- Type de chauffageC.C. au gaz
Vitrage
- VitrageDouble
- Cadre de fenêtrepvc
Toit
- Type de toitToit en mansarde
- Couverture de toitArdoises
- ConditionEn parfait état
Confort extérieur
Panneaux solaires photovoltaïques
Destination
Habitation
Caractéristiques spéciales
- Cave :Non
- Grenier :Oui
Composition
- Living27.5 m²
- Bureau9 m²
- Terrasse15 m²
Faire offre àpd325.000 €

Vendu par
Jannique HARDENNE
jannique.h@connexionimmo.be

